ショーホーム見学予約はこちら

住宅 写真

古格

構造の風骨を、そのまま暮らしの風景にした
ベガハウススタッフの家

はじまり

「祖母の家からの建て替え」

住宅 写真

私たちの家づくりは、夫の祖母が大切に住んでいた古い家から始まりました。

二年間、その家に身を置き、ゆっくりと肌になじんでいきました。
けれど同時に、築年数を重ねた家が抱える 「これから」への不安も見えてきたことが
家づくりを考えるきっかけです。

雨漏りの跡、ところどころの傷み、暮らしの動線に合わない間取り。

「このまま、あと何十年と暮らせるだろうか?」
そんな問いが、日々の生活の中で少しずつ大きくなっていったのです。

リノベーションをするのか、新築を建てるのか。

最後まで迷いましたが、これから続く日々を思い浮かべたとき、
たどり着いた私たちの答えは、「建て替え」でした。
古い家で感じていた光や風の気配はそのままに、
これからの暮らしに合う間取りと温かさを、改めて。

そんな想いで、私たちの新しい家づくりは始まります。

試み

「構造をあらわに」

住宅 写真

このショーホームは、ベガハウスのなかでも「構造を大胆に見せた」住まいです。

梁を隠さず、そのまま一つの大きな部屋として感じてもらうための、新しい試みでした。

「シンプルで屋根が綺麗な家が作りたい」
そんな夫婦の想いから設計がスタートしています。

女性が作業している写真

入母屋(いりもや)の屋根が幾重にも重なり、途中からそっとガラスへと姿を変える。
その切り替わりが南北へ光を落とし、家の内と外に、静かな陰影をつくりだします。
外に立つと、家の天井がそのまま景色として目に届く。

そんな構造の美しさを、そのまま暮らしの真ん中へ迎え入れた住まいです。

発想

「敷地を風景にするには」

住宅 写真

周囲に広がるのは、特別な眺望のない住宅地。

外に「借りられる景色」がないからこそ、自分たちで敷地を風景にする発想で進めて行きました。

いりもやの屋根が折り重なるかたちに光を受け、
南北へまっすぐ落ちる陽が、内部に静かな奥行きをつくる。

三角窓からは、天井と構造のラインがそのまま空へとつながり、
家そのものが「眺める対象」へと変わっていきます。

外の景色に頼らず、自分たちの手でつくった環境を味わいながら住まう。
この家は、そんな場所を目指して設計された住まいです。

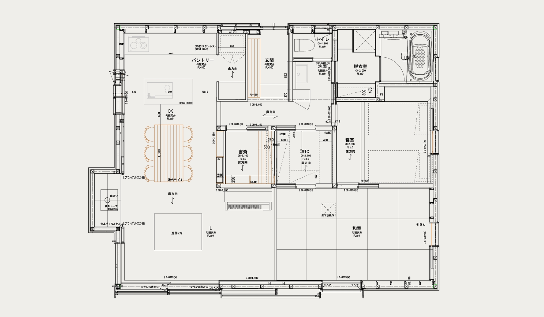
間取り

「大きなひとつの、1LDK」

収集癖がある私たちは、雑多さごと、受け止める器としての家を求めていました。

整えすぎるための収納ではなく、
「置ける余白」そのものが暮らしのリズムをつくる住まいです。

ひと続きの平屋に、LDK・和室・書斎・寝室が緩やかに連なる、大きな大きな1LDK。
どこにいても、好きなものが視界のどこかに。

そんな寛容さをもった家になっています。

間取り図

素材

「経年変化を愛すること」

多くの異なった素材を使うことで、経年で表情が変わり、
その変化を暮らしの記録として、「面白く」感じることができる住まいになりました。

ベガハウスの質感がお好きな方は、きっと細部まで楽しむことができる家です。

間取り図
  • 1

    玄関扉「銅をまいた扉」

    玄関扉
    「銅をまいた扉」

    くすみが家の歴史になっていく素材

  • 2

    壁「珪藻土・すさ・藁」


    「珪藻土・すさ・藁」

    陽の光や照明の灯りが美しく映し出される質感

  • 3

    床「ブラックチェリー」


    「ブラックチェリー」

    歩いた分だけ艶を育てていく木肌

  • 4

    キッチン

    • キッチン

      キッチン

      コンロ側「モルタル」

      耐火性に優れ、使い込むほど表情が増す素材
      長年集めてきた器を隠さず飾る背景として

    • キッチン

      シンク側「ブビンガ」

      重硬で強度がある美しい赤み

  • 5

    造作家具「ラワン」

    造作家具「ラワン」

    素朴でまっすぐ、暮らしの色に馴染んでいく素材、ラフな質感

  • 6

    造作ソファ「ヌメ革」

    造作ソファ「ヌメ革」

    手あかやしわも時間の染みとして育っていく質感

  • 7

    和室「いぐさ」

    和室「いぐさ」

    青い香りで落ち着きの空間をつくる

  • 8

     建具「木製窓」

    建具「木製窓」

    景観を整え、四季の光をやわらかく額装

  • 9

     書斎・クローゼット扉「竹」

    書斎・
    クローゼット扉「竹」

    軽さと強度を両立した直線的な木目が美しい素材

  • 10

     脱衣所「リノリウム」

    脱衣所
    「リノリウム」

    抗菌性や耐久性が高く、青と黄緑の美しい色を放つ

  • 11

    トイレ洗面

    トイレ洗面
    「白いタイル+
    赤い目地」

    凛とした白に、赤の遊び心

  • 12

    寝室カウンター「祖母の家の杉」

    寝室カウンター
    「祖母の家の杉」

    建て替え前の素材をそっと活かす工夫

  • 13

    寝室床「なぐり仕様のムクノキ」

    寝室床
    「なぐり仕様の
    ムクノキ」

    ベガハウスオリジナルのなぐり加工が波紋のように残る特別感

ACCESS

アクセス

鹿児島市東谷山付近

※従業員自宅になるため、ご予約いただいたお客様に改めて詳しくショーホーム場所を
お伝えさせていただきます

ショーホームご予約はこちら

メールでのお問い合わせ

  • ・お問い合わせフォームに必要事項のご入力をして送信ボタンをクリックしてください。
  • ・メールアドレスは正しくご入力下さい(弊社より返信メールが届きません。)
  • ・半角カナ入力は文字化けの原因になりますので、全角カナでご入力頂きますようお願いします。
  • ・【必須】項目は必ず入力してください。
  • ・お客様にご記入いただきました個人情報は厳重に管理いたします。
  • ・弊社への営業目的としたお問い合わせは、ご遠慮ください。

お電話でのお問い合わせはこちら

      お名前必須

      ふりがな

      メールアドレス必須

      電話番号必須

      ご来場予定日必須

      ご来場希望時間必須


      ※カタログ請求希望の方は必ずご入力ください

      郵便番号入力すると住所が自動入力されます


      ご住所




      建設予定地


      ご質問・ご要望

      • ・お問い合わせフォームに必要事項のご入力をして送信ボタンをクリックしてください。

      • ・メールアドレスは正しくご入力下さい(弊社より返信メールが届きません。)

      • ・半角カナ入力は文字化けの原因になりますので、全角カナでご入力頂きますようお願いします。

      • ・【必須】項目は必ず入力してください。

      • ・お客様にご記入いただきました個人情報は厳重に管理いたします。

      • ・弊社への営業目的としたお問い合わせは、ご遠慮ください。

      お電話でのお問い合わせはこちら

      そうまち

      見学予約